Logo Přihlásit | Registrovat

Přihlášení


Registrace do programu DEKPARTNER

Přihlašovací údaje
Zaměření*
Kontaktní údaje

Zapomenuté heslo


Vzdělávací centrum

Realizace nadkrokevního systému TOPDEK (nejen) na masivní nosné konstrukci střechy

Tento článek nabízí další ukázku velmi povedené realizace domu s nadkrokevní skladbou TOPDEK. Skladba TOPDEK umožnila realizaci estetického záměru stavebníka a přispěla k uživatelskému komfortu.

Článek vyšel také v DEKTIME SPECIÁL 2022 (viz pdf).

Autor:
Petr Ponikelský
Stavebniny DEK a.s.
Konzultační technik Atelieru DEK na pobočkách Hradec Králové a Trutnov

Tento článek nabízí další ukázku velmi povedené realizace domu s nadkrokevní skladbou TOPDEK. Skladba TOPDEK umožnila realizaci estetického záměru stavebníka a přispěla k uživatelskému komfortu.

Clipboard01
Obr. 1 - Vizualizace objektu

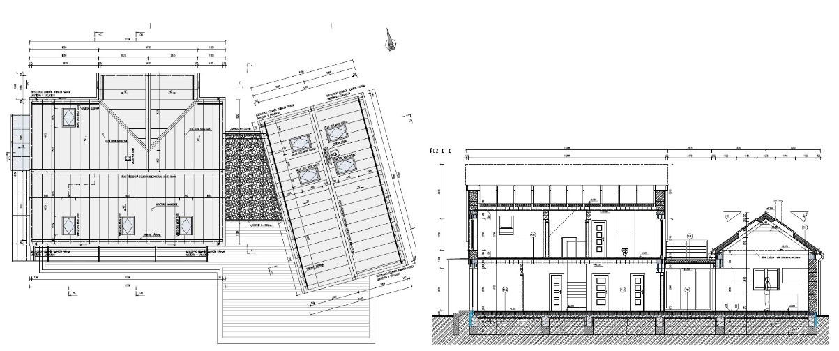
Projektant rodinného domu byl v tomto případě zároveň investorem. Zvolil zajímavý a poměrně neobvyklý koncept. Rodinný dům se skládá ze dvou samostatných objektů se šikmou sedlovou střechou, které jsou propojeny spojovacím krčkem s plochou střechou. Ta bude využívána jako terasa. V přízemním objektu, který je otevřený prosklenými plochami do prostorné zahrady, je umístěn obývací pokoj s kuchyní. Druhý objekt je řešen jako dvoupodlažní s obytným podkrovím, kde jsou umístěny dětské pokoje, ložnice a koupelna.

Clipboard02
Obr. 2 - Půdorys střech a řez objektem – vlevo podkrovní část s pokoji, vpravo přízemní část s obývacím pokojem a kuchyní.

Svislé nosné konstrukce tloušťky 450 mm jsou z pórobetonových tvárnic YTONG LAMBDA YQ PDK.

Střechy obou objektů jsou navrženy v nadkrokevním systému TOPDEK. U přízemního objektu byl jedním z požadavků projektanta pohledový dřevěný krov viditelný z interiéru až do hřebene. Tam byla realizována systémová skladba DEKROOF 11-D (ve Stavební knihovně DEK označena ST.8002B).

ST.8002B od interiéru:

  • KVH krokve DEKWOOD 120/160 mm,
  • pohledové palubky tl. 24 mm,
  • parozábrana TOPDEK AL BARRIER,
  • tepelná izolace TOPDEK 022 PIR tl. 160 mm,
  • doplňková hydroizolační vrstva DEKTEN PRO PLUS,
  • kontralatě 40/60 mm,
  • bednění z OSB desek tl. 25 mm,
  • podkladní samolepící asfaltový pás BAUDER TOP UDS tl. 1,5 mm,
  • hliníková falcovaná krytina PREFALZ.
Clipboard03
Obr. 3 - Vizualizace skladby ST.8002B z Katalogu STAVEBNINY DEK (znázorněno s maloformátovou skládanou střešní krytinou na laťování)
Clipboard04
Obr. 4 - Konstrukce krovu z KVH profilů, krokve ukončeny na pozednici (podmínka pro spolehlivé vzduchotěsné napojení parozábrany na navazující konstrukce
Clipboard05
Obr. 5 - Realizace parozábrany ze samolepicího SBS modifikovaného asfaltového pásu TOPDEK AL BARRIER na celoplošné bednění z dřevěných palubek
Clipboard06
Obr. 6 - Pokládka tepelné izolace TOPDEK 022 PIR tl. 160 mm
Clipboard07
Obr. 7 - Rozpracovaná hliníková falcovaná krytina na podkladní pás
Clipboard08
Obr. 8 - Využití pohledového dřevěného krovu v obývacím pokoji s kuchyní

Vzhledem k tomu, že v podkroví dvoupodlažní části jsou umístěny ložnice a dětské pokoje, byl projektant rozhodnutý nejít v řešení nosné konstrukce střechy cestou tradičního dřevěného krovu a využil v našich končinách zatím méně obvyklou masivní nosnou konstrukci. Když to hodně zjednodušíme, jedná se o nakloněnou stropní konstrukci z železobetonových nosníků s vloženými pórobetonovými tvarovkami. Hlavním argumentem pro tento systém byla tepelná pohoda v podkroví během horkých letních měsíců. Byla realizována systémová skladba DEKROOF 20-A (ve Stavební knihovně DEK označena ST.8004E).

Skladba ST.8004E od interiéru:

  • stropní konstrukce YTONG KOMFORT tl. 200 mm,
  • penetrační nátěr DEKPRIMER,
  • parozábrana TOPDEK AL BARRIER,
  • tepelná izolace TOPDEK 022 PIR tl. 160 mm,
  • doplňková hydroizolační vrstva DEKTEN PRO PLUS,
  • kontralatě 40/60 mm,
  • bednění z OSB desek tl. 25 mm,
  • podkladní samolepicí asfaltový pás BAUDER TOP UDS tl. 1,5 mm,
  • hliníková falcovaná krytina PREFALZ.
Clipboard09
Obr. 9 - Vizualizace skladby ST.8004E z Katalogu Stavebnin DEK (znázorněno s maloformátovou skládanou střešní krytinou na laťování)

Nosnou masivní střešní konstrukci lze řešit několika způsoby. Obdobně jako u dřevěného krovu lze vnitřní prostor nechat otevřený až do hřebene, jak je vidět na obr. 10. Další dvě varianty kombinují masivní nosnou konstrukci s krovem nad střešní dutinou (obr. 11).

Clipboard10
Obr. 10 - Otevřený prostor interiéru až do hřebene střechy (zdroj: www.ytong.cz)
Clipboard11
Obr. 11 - Schema řešení dle publikace Produktový katalog Ytong (zdroj: www.ytong.cz)

V našem případě byla zvolena poslední varianta. Přesah střechy je minimální. Tepelná izolace TOPDEK 022 PIR je v jedné vrstvě tloušťky 160 mm s úpravou desek na pero-drážku.

Clipboard12
Obr. 12 - Vyskládaná a vyarmovaná nosná konstrukce střechy
Clipboard13
Obr. 13 - Betonáž nosných žeber

Na vyzrálou nosnou konstrukci se nanesl nátěr DEKPRIMER a provedla se parozábrana ze samolepicího SBS modifikovaného asfaltového pásu TOPDEK AL BARRIER.

Clipboard14
Obr. 14 – Přípravný asfaltový nátěr

U okapové hrany byly osazeny dřevěné smykové podpory, které zároveň nesou minimální přesah střechy. Podpory jsou fixovány pozinkovanými úhelníky 90x105x105. Úhelníky jsou umístěny na obou stranách podpor. Do dřeva jsou kotveny vrutem RAPI-TEC SK PLUS a do betonu vrutem MMS plus 10x70 se šestihrannou hlavou a podložkou.

Clipboard15
Obr. 15 - Konstrukce krovu nad střešní dutinou a realizace okapových a štítových podpor
Clipboard16
Obr. 16 - Detail fixace okapových námětků

Tepelná izolace TOPDEK 022 PIR je kladena na masivní nosnou konstrukci s dokončenou parozábranou. Krov nad střešní dutinou ponese již jen DHV a krytinu. Ve střešní dutině pod vrcholovým krovem vznikl prostor pro skladování. Vstup do něj musí být zateplený a vzduchotěsný.

Clipboard17
Obr. 17 - Pokládka tepelné izolace TOPDEK 022 PIR
Clipboard18
Obr. 18 - Tepelněizolační vrstva a krov střešní dutiny

Tepelná izolace TOPDEK 022 vytváří na šikmině dostatečně tuhý podklad pro realizaci doplňkové hydroizolační vrstvy z difuzní folie DEKTEN PRO PLUS. Vznikne tak DHV konstrukčního typu 2.2, což odpovídá třídě těsnosti 4 dle publikace Pravidla pro navrhování a provádění střech, CKPT z roku 2014. Pokud by navíc kontralatě byly vůči DHV těsněné speciální páskou nebo tmelem, bylo by docíleno konstrukčního typu 2.1 a třídy těsnosti 3. Lze považovat za přijatelné, že nad střešní dutinou je DHV z fólie lehkého typu bez podkladu napnuta mezi krokvemi. Jedná se o malý rozsah ve vrcholové části střechy a případné drobné úkapy je povrch použitého materiálu tepelněizolační vrstvy schopen zadržet tak, aby se mohly odpařit do vnějšího prostředí, je-li správně zajištěno větrání střešní dutiny. Navíc při daném sklonu střechy bude plechová drážková krytina podložená asfaltovým pásem velmi těsná. Nutno ale dodat, že pás pod krytinou nelze dle Pravidel považovat za doplňkovou hydroizolační vrstvu. Není totiž umožněn hladký odtok vody po jeho povrchu ani odvod vlhkosti mezi ním a krytinou větráním.

Clipboard19
Obr. 19 - Doplňková hydroizolační vrstva z difuzní folie DEKTEN PRO PLUS, kontralatě kotvené do nosné konstrukce, pomocné montážní laťování

Systém TOPDEK se standardně fixuje pomocí systémových vrutů přes kontralatě až do nosné konstrukce. V případě kotvení do dřevěné nosné konstrukce se používají systémové vruty TOPDEK ASSY. Ty samozřejmě do nosné konstrukce YTONG KOMFORT nejdou použít a tak statik společnosti DEKPROJEKT s.r.o. navrhl fixaci pomocí vrutů TWIN UD. V místě betonových žeber se kotvilo vrutem délky 250 mm s předvrtáním a v místě pórobetonových tvarovek vrutem délky 300 mm bez předvrtání.

Clipboard20
Obr. 20 - Dvouzávitové vruty TWIN UD (zdroj: www.isover.cz)
Clipboard21
Obr. 21 - Rozpracovaná hliníková falcovaná krytina na podkladním pásu
Clipboard22
Obr. 22 - Pohled na hotovou střechu s osazenými tyčovými sněhovými zábranami
Clipboard23
Obr. 23 - Pohled na téměř dokončený objekt

Foto Ing. Jan Mácha a Petr Ponikelský

Partneři programu