Logo Přihlásit | Registrovat

Přihlášení


Registrace do programu DEKPARTNER

Přihlašovací údaje
Zaměření*
Kontaktní údaje

Zapomenuté heslo


Vzdělávací centrum

Poznatky o zjišťování údajů pro návrh ochrany stavby proti radonu

V červnu roku 2017 se na regionálního technika Atelieru DEK obrátila izolatérská firma, která měla realizovat hydroizolaci spodní stavby s tím, že má zároveň sloužit i jako izolace proti pronikání radonu do objektu. V rámci technické podpory byl proveden návrh izolace proti radonu z podloží.

Článek vyšel také ve SBORNÍKU SEMINÁŘE 2019 (viz pdf).

Jedná se o novostavbu dvou téměř totožných objektů, které budou sloužit jako bytový dům a ubytovna spadající pod zavedenou horskou chatu U Slona na Dolní Moravě. Ta se nachází na rozhraní Orlických hor a Jeseníků nedaleko pramene řeky Moravy.

Objekty jsou zaříznuty do svahu v sousedství sjezdovky a bobové dráhy. Objekty jsou částečně podsklepeny. V prvním podzemním podlaží jsou umístěny pobytové prostory a nacházejí se v něm bytové jednotky.

obr01
Obr. 1 - Situace
obr02
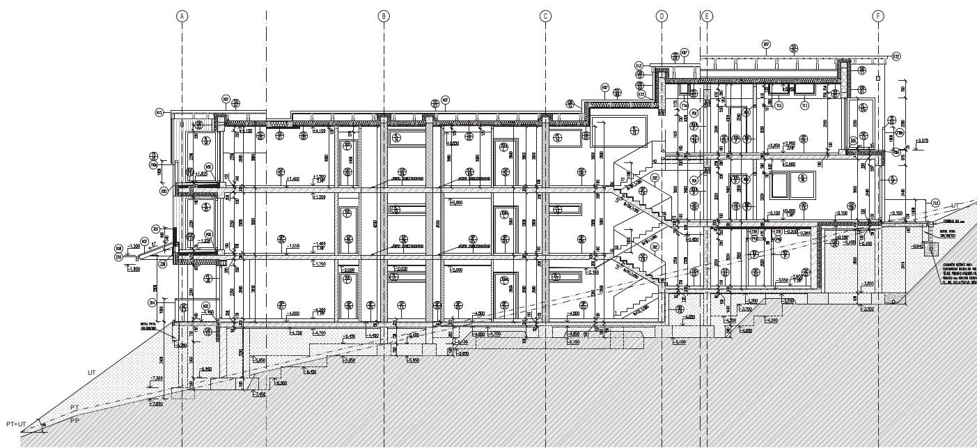
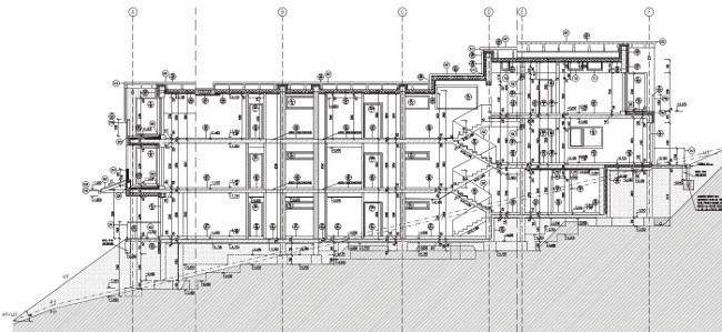
Obr. 2 - Řez jedním z objektů

Na pozemku určeném k výstavbě zmíněných objektů bylo před zahájením projektových prací během 11. až 23. prosince 2016 provedeno měření radonu pro stanovení radonového indexu pozemku. Toto měření se dle ČSN 73 0601 provádí v hloubce 0,8 m pod povrchem zpravidla původního, neupraveného terénu. Celkem bylo odebráno 48 vzorků půdního vzduchu. Měřící body byly rozmístěny v ploše obou budoucích objektů.

obr03
Obr. 3 - Rozmístění měřících bodů při prvním měření

Naměřená hodnota objemové aktivity radonu (OAR) v půdním vzduchu činila 89,7 kBq/m3.
Plynopropustnost zeminy byla měřením stanovena jako střední. Radonový index pozemku byl stanoven vysoký.

Dle ČSN 73 0601 se za dostatečnou ochranu novostavby při vysokém radonovém indexu stavby považuje provedení všech kontaktních konstrukcí v 1. kategorii těsnosti, pokud OAR nepřesáhne 140 kBq/m3 pro střední plynopropustnost zeminy (příp. 200 kBq/m3 pro nízkou; 60 kBq/m3 pro vysokou plynopropustnost). Konstrukce 1. kategorie těsnosti obsahuje vždy alespoň jednu vrstvu celistvé protiradonové izolace s plynotěsně provedenými spoji a utěsněnými prostupy.

Pro návrh a posouzení ochrany stavby proti radonu je dále důležité, že podlahové vytápění sice nebylo v kontaktním podlaží navrženo, ale předpokládala se realizace vrstev násypů o vysoké propustnosti pod kontaktním podlažím. To souviselo s návrhem drenáže jako součásti ochrany stavby před podzemní vodou. Posouzení spolehlivosti hydroizolace bylo provedeno pomocí aplikace DEKSOFT HYDROIZOLACE.

S pomocí aplikace DEKSOFT ANTIRADON byl pro protiradonovou izolaci navržen asfaltový pás GLASTEK 40 SPECIAL MINERAL v doporučené kombinaci s dalším opatřením (viz Doplňující informace pod tabulkou výstupu z aplikace DEKSOFT ANTIRADON).

tab1
Tab. 1 - Výstup z aplikace DEKSOFT ANTIRADON - po prvním měření

V případě, že je objekt podsklepený, vždy upozorňujeme na nutnost ověření radonového indexu stavby novým měřením po provedení výkopových prací. Radonový index stavby v úrovni základové spáry totiž nemusí odpovídat zjištěnému radonovému indexu pozemku. Učinili jsme tak i v popisovaném případě.

Generální dodavatel stavby skutečně po provedení výkopových prací nechal zpracovat nové měření. Toto měření jiný zpracovatel provedl 3. července 2017. Celkem 15 vzorků půdního vzduchu bylo odebíráno opět z hloubky kolem 0,8 m, ovšem tentokrát na úrovni základové spáry. Zjištěné hodnoty se diametrálně lišily od prvního měření. V úrovni původního terénu se nacházela zemina s vyšším podílem hlinité složky než v základové spáře, kde byly zastiženy hlinité štěrky se sutí. Nově byla stanovena vysoká plynopropustnost zemin. Naměřená hodnota objemové aktivity radonu v půdním vzduchu činila 516 kBq/m3, tedy téměř šestkrát více než v úrovni původního terénu!

obr04
Obr. 4 - Rozmístění měřících bodů při druhém měření

Po zjištění nových hodnot byl aktualizovan i návrh Atelieru DEK v aplikaci DEKSOFT ANTIRADON. Na základě výsledků výpočtu bylo nutné zvýšit dimenzi izolace proti radonu na dva asfaltové pásy GLASTEK 40 SPECIAL MINERAL.

tab2
Tab. 2 - Výstup z aplikace DEKSOFT ANTIRADON - po druhém měření

Realizace doplňkových opatření byla samozřejmě doporučena stejně jako v prvním návrhu provedeném podle měření na úrovni původního terénu. Tentokrát ale doplňková opatření nebyla pouhou pojistkou pro případ, že se nahromadí radon v propustných zásypech pod objektem. Větrání podloží nebo kontaktní konstrukce bylo nezbytné z důvodu překročení normou doporučené hranice hodnoty OAR rozhodné pro návrh těchto opatření. Generální projektant stavby na základě nových informací zapracoval do návrhu doplňkové opatření v podobě větracího systému v podloží.

Uvedený případ potvrzuje, že doporučení opakovat měření radonu po otevření stavební jámy pro suterén objektu, je na místě.

obr05
Obr. 5 - Fotografie s celkovým pohledem na staveniště převzatá z protokolu druhého stanovení radonového indexu.

Investor: SNĚŽNÍK a.s., Gajdošova 4392/7, 615 00 Brno
Generální projektant: Atelier Habina s.r.o., Kopečná 11, 602 00 Brno
Generální dodavatel: Metrostav a.s., Koželužská 2450/4, 180 00 Praha

Měření a hodnocení výskytu radonu na stavebním pozemku; zpracovatel Ing. Petr Knápek; číslo protokolu L 001/2017; datum 6.1.2017
Protokol o stanovení radonového indexu pozemku; zpracovatel Bc. Michal Valach; číslo protokolu OUT/053/2017; datum 4.7.2017



Autor:
Petr Ponikelský
konzultační technik ATELIERU DEK, působí na pobočkách STAVEBNINY DEK Hradec Králové a Trutnov
petr.ponikelsky@dek-cz.com, +420 737 281 219

autor
autor
Partneři programu