Logo Přihlásit | Registrovat

Přihlášení


Registrace do programu DEKPARTNER

Přihlašovací údaje
Zaměření*
Kontaktní údaje

Zapomenuté heslo


Vzdělávací centrum

Návrh spolehlivé hydroizolace v revizi ČSN P 73 0600 Hydroizolace staveb

Zveřejněno: 24. 11. 2011
Ing. Luboš Káně, Ph.D.
DEK a.s., technický ředitel
Všechny články autora

Během desetiletého užívání normy ČSN P 73 0600:2000 Hydroizolace staveb se ukázalo, že norma je velmi potřebná, zvláště pro projektanty. V článku jsou uvedeny záměry a průběh revize normy a představení pomůcky pro návrh a posouzení hydroizolací staveb, která bude tvořit přílohu této normy.

ZÁMĚRY REVIZE

Současné znění normy Hydroizolace staveb vydané pod číslem 73 0600 je platné od roku 2000. Norma byla vydána k ověření, proto nese označení ČSN P. Během desetiletého užívání se ukázalo, že norma je velmi potřebná, zvláště pro projektanty. Proto technická normalizační komise TNK 65 Izolace staveb rozhodla, že norma má být po nezbytné revizi součástí systému českých technických norem. Platné znění obsahuje mnoho kvalitních informací potřebných k návrhu hydroizolací staveb, některé z důležitých informací jsou ale v přílohách, kde jim čtenáři nevěnují potřebnou pozornost. Součástí revize má být úprava struktury normy a její doplnění tak, aby norma ještě více přispívala k prevenci nedostatků, které se v návrzích hydroizolací stále ještě vyskytují.

Jedním ze záměrů revize je zdůraznit, že pro ochranu stavby proti nežádoucímu působení vody, tedy hydroizolaci, obvykle nestačí pouze hydroizolační konstrukce. Hydroizolace je v názvosloví zavedeném normou chápána jako soubor hydroizolačních konstrukcí a opatření zajišťující požadovanou ochranu stavby před nežádoucím vnikáním nebo působením  namáhající vody nebo zabraňující nežádoucím únikům vody. Je třeba si uvědomit, že některá opatření je třeba realizovat již v prvopočátku přípravy investičního záměru. Například pro ochranu podzemních prostor a konstrukcí před vodou má mnohem větší efekt rozhodnutí investora o umístění suterénu nad hladinu podzemní vody než následné mnohaměsíční úsilí architekta, projektanta hydroizolace, statika a dodavatelů stavby a konstrukcí o eliminaci nežádoucího působení podzemní vody na stavbu. Také jedině v počátku přípravy stavby lze řešit polohu obvodu suterénu vůči hranicím pozemku tak, aby vznikl dostatečný prostor pro realizaci hydroizolačních a s nimi souvisejících konstrukcí. Investor by si měl najímat architekta, který bude na řešení ochrany stavby proti podzemní vodě, na řešení tvaru a odvodnění střech, na hydroizolačním řešení fasád, na ochraně stavby před provozní vodou a na propojení všech obalových konstrukcí od počátku spolupracovat se specialistou v oboru hydroizolační techniky.

Dalším záměrem revize normy je zvýšit povědomí o potřebě správného stanovení hydrofyzikálního namáhání. Stále se vyskytuje mnoho vad staveb způsobených nesprávným vyhodnocením hydrofyzikálního namáhání. Je třeba zpřehlednit definice jednotlivých druhů hydrofyzikáního namáhání přísným oddělením popisu zdroje vody od hodnocení tlakových účinků tohoto zdroje vody, časového hlediska a vydatnosti zdroje v případě výskytu poruchy hydroizolační konstrukce.

V neposlední řadě si autoři kladou za cíl podpořit uplatnění hledisek spolehlivosti při navrhování hydroizolací.

POMŮCKA PRO NÁVRH A POSOUZENÍ HYDROIZOLACÍ STAVEB

S vědomím, že nikdy nemůže postihnout všechny případy, vložili autoři do přílohy pomůcku pro návrh nebo posouzení hydroizolace stavby a pro výběr vhodných hydroizolačních konstrukcí a opatření do návrhu hydroizolace. Předpokládáme, že zkušený projektant hydroizolací pomůcku nikdy nepoužije. Projektantovi, který není specialistou na hydroizolace staveb, by ale mohla pomoci zorientovat se ve složité problematice návrhu hydroizolace. Pomůcka podporuje vnímání hydroizolace jako systému i uplatnění hledisek spolehlivosti. Pomůcka je členěna do několika tabulek, které odpovídají jednotlivým krokům návrhu. Struktura příloh ještě není pevně zakotvena, proto pro potřeby tohoto článku použijeme vlastní číslování.

Tab. 01 – Přehled hydrofyzikálních namáhání

Označení

Název

A

vzlínající vlhkost (kapilární tlak)

B

voda volně stékající bez tlaku

BW

voda pod vlivem vnějšího tlaku (obvykle tlak větru)

C

voda dočasně nebo lokálně pod hydrostatickým tlakem

D

voda stále pod hydrostatickým tlakem nebo s velkou vydatností v případě poruchy

P

vodní pára

V tab. 02 jsou uvedeny čtyři třídy požadavků na hydroizolaci podle druhu chráněných prostor. Při zatřídění je třeba vycházet nejen z druhu prostor, ale také, mimo jiné, z významu předmětů v nich umístěných. Například prostory, ve kterých jsou umístěny vzácné „veterány“ nejspíš nebudou posuzovány jen jako garáže.

Tab. 02 – Třídy hydroizolačních požadavků

Druhy chráněných prostor

Příklady

Třída požadavků

Prostory do kterých nesmí vnikat voda, ve kterých by případné vnikání vody způsobilo nenahraditelné škody. Obvykle s požadavkem na stav vnitřního prostředí.

muzea, galerie, archivy nemocnice, technologické provozy s cenným vybavením

P4

Prostory do kterých nesmí vnikat voda. Škody vzniklé vniknutím vody lze pojistit. Obvykle s požadavkem na stav vnitřního prostředí.

byty, kanceláře, prodejny

P3

Prostory do kterých může vnikat voda v malém množství ale nemůže odkapávat na osoby nebo zařízení. Nevadí odpar vlhkosti z povrchu konstrukcí.

garáže

P2

Prostory do kterých může vnikat voda v malém množství a může odkapávat na osoby nebo zařízení. Nevadí odpar vlhkosti z povrchu konstrukcí.

kolektory

 

P1 

V tab. 03 jsou popsány různé úrovně přístupnosti hydroizolačních konstrukcí. Přístupnost pro případnou budoucí opravu je jedno z hledisek pro volbu míry spolehlivosti konstrukce.

Poptat službu uvedenou v tomto článku

Tab. 03 – Přístupnost hydroizolačních konstrukcí

Označení, popis 

Příklady

Třída požadavků

V

Volně přístupné

nezakrytá hydroizolační konstrukce, přístupná z exterieru nebo interieru

P

Přístupné

hydroizolační konstrukce zakrytá vrstvami, které lze odstranit, aniž by došlo k jejich znehodnocení

dlažba na podložkách, dlažby v zásypech, demontovatelné klempířské konstrukce, vegetační střechy s tloušťkou substrátu do cca 15 cm

O

Obtížně přístupné

hydroizolační konstrukce zakrytá vrstvami, které lze odstranit bez zásadního zásahu do nosných konstrukcí a při použití obvyklých technologií, odstraňované vrstvy jsou obvykle znehodnoceny nebo přístup k hydroizolační konstrukci znamená zásah do majetkových práv druhých osob

zásyp stavební jámy kolem suterénu, vegetační střechy, hydroizolace pod monolitickými ochrannými nebo provozními vrstvami, nosné stěny na vodorovné hydroizolační konstrukci, nad hydroizolační konstrukcí prostor patřícím jiným majitelům, hranice pozemku, veřejná komunikace podél stavby, technologická zařízení na střeše

N

Nepřístupné

není umožněn přístup k hydroizolační konstrukci bez zásadních zásahů do nosných konstrukcí a/nebo je k zajištění přístupu nutné využít speciální technologie 

pažení Milánskými stěnami, základová deska nad hydroizolační konstrukcí, půdorys suterénu menší než půdorys vyššího podlaží, zabudování ve střešní skladbě (parotěsnicí vrstva, pojistná hydroizolační vrstva)

V tab. 04 jsou uvedeny běžné příklady obalových konstrukcí stavby nebo jejich hydroizolačních konstrukcí a jejich obvyklá přístupnost a obvyklé hydrofyzikální namáhání.

Tab. 04 – Obvyklé hydrofyzikální namáhání a přístupnost podle druhu konstrukce

Konstrukce

Sklon

Hydrofyzikální namáhání

Obvyklá přístupnost*

krytina střechy nebo fasády

0-3°

D

P
 

3-7°

C

7-90°

B

vrstva skladby střechy nebo fasády zakrytá dalšími vrstvami např. pojistná hydroizolační vrstva nebo doplňková hydroizolační vrstva

0-7°

D

O

7-90°

C

vrstva skladby střechy nebo fasády zakrytá dalšími vrstvami, bezprostředně k ní „na straně vody“ přiléhá drenážní vrstva např. pojistná hydroizolační vrstva nebo doplňková hydroizolační vrstva

0-3°

D

O

3-90°

B

hlavní vodotěsnicí vrstva provozní střechy (terasa, vegetační střecha) nebo střechy stabilizované zatížením

0-7°

D

P,O (podle druhu provozní vrstvy) N (komplikované majetkové vztahy)

7-90°

C, spíše D (pokud na vodotěsnicí vrstvě leží drenážní vrtsva)

obalová konstrukce suterénu svislá v libovolné zemině nad návrhovou hladinou podzemní vody zvýšenou o 1000 mm

 

B* (s přiléhající odvodněnou plošnou drenáží)
D* (bez přiléhající odvodněné plošné drenáže)

O,N (podle hloubky, terénních úprav, vlastnických vztahů pozemků)

obalová konstrukce suterénu vodorovná v libovolné zemině (propustné nebo nepropustné) nad návrhovou hladinou podzemní vody zvýšenou o 1 000 mm se speciálními opatřeními bránícími nahromadění vody (podkladní beton ve sklonu 3 ° k obvodové drenáži, plošná drenáž v přímém kontaktu s obalovou konstrukcí)

 

C*

N

obalová konstrukce suterénu vodorovná v libovolné zemině nad návrhovou hladinou podzemní vody zvýšenou o 1 000 mm

 

D*

N

Přístupnost je stanovena podle definic v tab. 03, hydrofyzikální namáhání podle kapitoly 5, kam bylo přesunuto z příloh. Přehled hydrofyzikálních namáhání je shrnut do tab. 01. V kapitole 5 je navíc přehled obvyklých zdrojů vody vyvolávajících jednotlivá hydrofyzikální namáhání. V tab. 05 a 06 jsou pro potřeby posouzení hydroizolace stanoveny třídy účinnosti a třídy spolehlivosti hydroizolačních konstrukcí. Ty jsou v tab. 07 přiřazeny k vybraným hydroizolačním konstrukcím. Pro potřeby tohoto článku je do tab. 07 vybráno jen několik hydroizolačních konstrukcí z výrazně obsáhlejšího výčtu v normě. Ani výčet v normě však nelze považovat za vyčerpávající. Každou novou konstrukci si ale běžný uživatel normy může srovnáním s již zařazenými konstrukcemi zařadit do třídy účinnosti a třídy spolehlivosti.

Tab. 05 – Třídy účinnosti stavebních konstrukcí

Třída účinnosti

Popis

U1

konstrukce v daném hydrofyzikálním namáhání propouští vodu tak, že z jejího chráněného povrchu nebo z vnitřního povrchu jí chráněných konstrukcí stéká voda, ovlivňuje vnitřní prostředí

U2

konstrukce v daném hydrofyzikálním namáhání propouští vodu tak, že její chráněný povrch je vlhký, nestéká z něj voda, nebo z ní vlhkost proniká vzlínáním do chráněných konstrukcí, které jsou s ní v kontaktu, ovlivňuje vnitřní prostředí

U3

konstrukce v daném hydrofyzikálním namáhání nepropouští vodu na svůj chráněný povrch

U4

konstrukce v daném hydrofyzikálním namáhání nepropouští vodu pod svůj exponovaný povrch

Tab. 06 – Třídy spolehlivosti stavebních konstrukcí

Třída účinnosti

Popis

S1

je velmi pravděpodobné, že nebude dosaženo potřebné těsnosti nebo v průběhu užívání dojde k neodstranitelné poruše

S2

nelze odhadnout, zda hydroizolační konstrukce bude funkční

S3

je velmi pravděpodobné, že bude dosaženo potřebné těsnosti nebo poruchy vznikllé v průběhu užívání budou odstranitelné

V tab. 08 jsou doporučeny třídy spolehlivosti hydroizolačních konstrukcí podle přístupnosti. Návrh hydroizolace jako souboru hydroizolačních konstrukcí a opatření by měl začínat od tab. 09, kde je pro jednotlivé části staveb k jednotlivým třídám požadavků doporučena kombinace hydroizolačních konstrukcí a opatření a ve většině případů je doporučena minimální třída hydroizolační účinnosti hydroizolačních konstrukcí. Podle přístupnosti se v tab. 08 stanoví potřebná třída spolehlivosti hydroizolačních konstrukcí. V tab. 07 se vyhledají hydroizolační konstrukce s odpovídající nebo lepší spolehlivostí a účinností. Samozřejmě je třeba zkontrolovat, které z nalezených hydroizolačních konstrukcí jsou vhodné pro dané použití.

Tab. 07 – Hodnocení (výňatek z tabulky v návrhu revize normy)

Konstrukční princip

Příklady hydroizolačních konstrukcí

hf

úč.

sp.

Faktory spolehlivosti*

monolitické masivní samonosné konstrukce s opatřeními zvyšujícími hydroizolační účinnost (těsnění prac. a dil. spár), součástí je dotěsnění injektáží

vodonepropustná betonová konstrukce (bílá vana)

A

-

-

mech. odolnost přístupnost z interieru pro kontrolu i opravu lokalizace poruchy

B

U3

S3

C

U3

S3

D

U3

S3

monolitické měkké nesamonosné z jedné vrstvy materiálu

hydroizolační povlaky ze syntetických fólií s jednoduchými spoji

A

U4

S3

 

B

U4

S2

C

U4

S2

D

U4

S1

monolitické měkké nesamonosné se zabudovaným kontrolním systémem

hydroizolační povlaky z více syntetických fólií svařených do sektorů, jejichž těsnost je kontrolovatelná

A

U4

S3

přístupnost z interieru pro kontrolu i opravu lokalizace poruchy sektorová

B

U4

S3

C

U4

S3

D

U4

S3

skládané hydroizolační vrstvy z tvrdých prvků nesamonosné (ČSN 73 0607)

skládané hydroizolační konstrukce šikmých střech

A

-

-

přístupnost pro opravu

BW

U1

S3

C

-

-

D

-

-

Tab. 08 – Doporučené minimální stupně spolehlivosti hydroizolačních konstrukcí podle jejich přístupnosti

Přístupnost

Třída spolehlivosti

V

S2

P

S2

O

S3

N

S3

Tab. 09 – Doporučené kombinace hydroizolačních konstrukcí a opatření podle stavebních konstrukcí a tříd chráněných prostor

Exponovaná stavební konstrukce

P1

P2

P3

střechy 

hlavní vodotěsnicí konstrukce U4
pojistná vodotěsnicí konstrukce U4

hlavní vodotěsnicí konstrukce U4

hlavní vodotěsnicí konstrukce

obvodové konstrukce suterénu

hlavní vodotěsnicí konstrukce
pojistná vodotěsnicí konstrukce
nepropustná terénní úprava odvodněná nad HPV
drenáž
úprava vnitřního prostředí

hlavní vodotěsnicí konstrukce
nepropustná terénní úprava odvodněná nad HPV
drenáž

 

podlahy na stropech a stěny vnitřní

hlavní vodotěsnicí konstrukce U4
pojistná vodotěsnicí konstrukce U4

hlavní vodotěsnicí konstrukce U4

hlavní vodotěsnicí konstrukce U4

podlaha garáží

hlavní vodotěsnicí konstrukce U4
pojistná vodotěsnicí konstrukce U4
systematické odvodnění podlahy
odsávání nánosů vody
„rohožka“

hlavní vodotěsnicí konstrukce U4
systematické odvodnění podlahy

hlavní vodotěsnicí konstrukce
systematické odvodnění podlahy

V revidované normě se nově používá pojem hydroizolační konstrukce. Součástmi hydroizolační konstrukce jsou hydroizolační vrstvy, návaznosti na jiné konstrukce, řešení prostupů, prvky pro kontrolu těsnosti nebo pro utěsnění apod. Pro samotnou hydroizolační vrstvu lze obvykle stanovit třídu účinnosti a třídu spolehlivosti, pro vytvoření funkční hydroizolační konstrukce je ale často třeba kombinovat více hydroizolačních vrstev s dalšími prvky. Příkladem může být hydroizolační konstrukce na šikmé střeše. Hydroizolační vrstva skládaná z taškové krytiny obvykle sama nestačí pro zajištění potřebné účinnosti. Musí se do hydroizolační konstrukce kombinovat s doplňkovou hydroizolační vrstvou, kromě toho je nezbytné vyřešit návaznosti na jiné konstrukce, průniky střešních rovin, prostupy prvky větrání apod.

Pojem hydroizolace vyjadřuje komplexní úsilí projektanta v zajištění ochrany stavby proti určitému zdroji vody. Je to soubor hydroizolačních konstrukcí a opatření zajišťující požadovanou ochranu stavby před nežádoucím vnikáním nebo působením vody nebo zabraňující nežádoucím únikům vody.

PRŮBĚH REVIZE

Revize normy je ve fázi prvního návrhu. Všechny její části včetně pomůcky v přílohách budou ještě předmětem diskusí, škrtání a doplňování tak, aby výsledná podoba normy byla přijatelná pro co nejširší okruh jejích uživatelů a přispívala k co největší kvalitě návrhů hydroizolací staveb. K vysoké kvalitě normy chceme přispět i tímto článkem a navazujícími semináři Střechy, fasády, izolace. Předpokládáme, že rozšíření prvního návrhu mezi odborníky spolu s výkladem zpracovatelů revize přispěje ke shromáždění kvalitních podnětů a připomínek pro zdárné dokončení revize.

PŘÍKLAD APLIKACE HLEDISEK SPOLEHLIVOSTI V NÁVRHU HYDROIZOLACE STAVBY

Stavba: SKI AREÁL KOUTY

Investor: K3 SPORT s.r.o.

Generální projektant: A2 ARCHITEKTI s.r.o.

Projektant stavební části: GRAM s.r.o.

Projekt hydroizolačního povlaku: DEKPROJEKT s.r.o. – POD VEDENÍM ING. JANA MATIČKY VYPRACOVALI ZDENĚK ELEFANT A ING. PETR SCHINDLER.

Generální dodavatel: HORSTAV OLOMOUC s.r.o.

Dodavatel izolačního povlaku: SOPAT CZ s.r.o.

Novostavba sportovního centra byla umístěna do údolí horského potoka. Podzemní části stavby je třeba chránit nejen proti pronikání podzemní vody, ale také proti vztlaku vody. Vzhledem ke klimatickým podmínkám a osazení do terénu se počítá s velkým kolísáním hladiny podzemní vody. Návrhová hladina se proto uvažuje až v úrovni podlahy 1. NP. Suterén je jen pod částí stavby (obr. 01), takže i svislé obvodové konstrukce suterénu nebudou přístupné.

Vzhledem k tomu, že požadavky investora na kvalitu podzemních prostor jsou velmi náročné, bude vyžadována co nejvyšší spolehlivost hydroizolačních konstrukcí. Okrajové podmínky vedly ke kombinaci dvou hydroizolačních konstrukcí – vodonepropustné betonové konstrukce (bílé vany) a dvojité fóliové sektorované hydroizolační konstrukce. Obě konstrukce jsou pro kontrolu a opravy přístupné z interiéru, bílá vana přímo, dvojitá fóliová hydroizolační konstrukce prostřednictvím zabudovaných opatření – kontrolních a injektážních trubic napojených hadicemi do speciálních šachet v interiéru. Obě konstrukce jsou kdykoliv opravitelné, navíc těsnost dvojité fóliové hydroizolační konstrukce lze zkontrolovat již v průběhu výstavby bez zaplavení stavební jámy vodou.

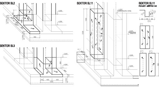
Na realizaci je zajímavá ta skutečnost, že část fóliové hydroizolační konstrukce na stěnách suterénu je montována z rubové strany (ve výkopu), takže hydroizolační konstrukce obsahuje vakuově kontrolovaný etapový spoj (obr. 02 až 05) . Hadice od kontrolních a injektážních trubic byly v případě stěn ukončeny v šachtách zabudovaných do podlah nepodsklepené části budovy a nebo do terénu podél fasády. Na fotografii /03/ jsou patrné svazky hadic připravené k napojení do šachet, které budou budovány spolu s nepodsklepenou částí budovy.

Další inspiraci poskytuje řešení dvojité fóliové hydroizolační konstrukce na anglických dvorcích, které jsou monoliticky propojené s betonovou konstrukcí suterénu, a v průběhu výstavby v otevřené jámě byly vykonzolovány ze suterénní konstrukce. Pro snazší montáž byla vytvořena „kopyta“ z bednění (obr. 06 a 07). V nich vytvořené části hydroizolační konstrukce byly jako prefabrikáty připevněny na anglické dvorky (obr. 08). U takto poměrně složitého řešení hydroizolačních konstrukcí vznikly velké nároky na způsob zobrazení některých částí konstrukcí v projektu. Svislé sektory fóliové konstrukce byly nakonec zobrazeny v axonometrii (obr. 09).

Poptat službu uvedenou v tomto článku

Partneři programu