V minulosti jsme na stránkách časopisu DEKTIME, případně na našich pravidelných seminářích STŘECHY|FASÁDY|IZOLACE, představovali realizace provozních střech, ve kterých byla navržena hlavní hydroizolační vrstva z dvojitého hydroizolačního systému DUALDEK. Sledované hydroizolace jsou na významných objektech nebo v konstrukcích nepřístupných při užívání pro opravu. Kontrolovatelný systém byl zvolen s cílem zvýšit hydroizolační spolehlivost konstrukcí. Skladby se systémem DUALDEK jsme kompletně navrhli, dozorovali jsme jejich provedení a víme tedy, že byly provedeny dle našich zásad. V následujících fotoreportážích přinášíme dokumentaci realizace a stav chráněných konstrukcí, které jsme po rocích provozu kontrolovali:
MLÝNSKÁ KOLONÁDA V KARLOVÝCH VARECH
Mlýnská kolonáda byla postavena v novorenesančním slohu (1871 – 1882) podle návrhu architekta Josefa Zítka. Sloupová stavba má délku 132 m a šířku 13 m. Kazetový strop trojlodní sloupové haly vynáší 124 korintských sloupů ze žuly. Atika s balustrádou je nad štíty portiků zdobena dvanácti alegorickými sochami měsíců. Zastřešení kolonády tvoří pochůzná terasa, která kryje celkem pět karlovarských pramenů. Fotodokumentace průběhu oprav teras a realizace systému DUALDEK a součastný stav je zachycen a okomentován na obr. 02 až 15.
Obr. 02 – S ohledem na dlouhodobé zatékání do podstřeší jsme byli v roce 2001 vyzváni ke zpracování projektové dokumentace rekonstrukce pochůzné terasy na kolonádě v Karlových Varech.
Obr. 03 – Řešení navržené pro rekonstrukci terasy spočívalo v demontáži stávajícího souvrství na úroveň původní hydroizolace z asfaltových pásů na spádové betonové mazanině a jejich vysprávce a pokládce nových vrstev popsaných na obrázku.
OBYTNÝ SOUBOR TERASY BUDOVEC V PRAZE SUCHDOLE
Kontrolovatelný a aktivovatelný hydroizolační systém DUALDEK byl na stavbě souboru bytových domů Terasy Budovec zvolen s ohledem na záměr rozprodat plochy předzahrádek na střeše garáží. Možnost utěsnit sektory injektáží z interiéru má zajistit, aby v případě defektů hydroizolace nedocházelo k zásahům do majetku budoucích vlastníků přízemních bytů (obnášelo by to řadu namátkových hlubokých výkopů na užívaných plochách, a to stále s nejistým výsledkem odhalení netěsného místa). Dokonce i kontrolní a injektážní trubice byly vyústěny do prostoru garážových stání tak, aby na předzahrádkách nebyly umístěny ani kontrolní šachtice a vlastníci předzahrádek nebyli vůbec rušeni.
ADMINISTRATIVNÍ KOMPLEX OASIS FLORENC V PRAZE
Administrativní budova OASIS FLORENC vyrostla v administrativní zóně v Praze 8-Karlíně. Zaplnila proluku v ulicích Sokolovská a Pobřežní na pražské Florenci. O stavbě jsme již informovali v seminářovém speciálu časopisu DEKTIME v r. 2008. Střechy komplexu OASIS FLORENC byly navrženy jako provozní s vegetačním souvrstvím. Vegetační substrát měl mít mocnost až 1,5 m. Jakýkoli hydroizolační systém střechy by byl obtížně přístupný pro případné opravy. Bylo nezbytné v maximální míře vyloučit případné vady hydroizolačního systému, které by omezovaly bezproblémové užívání kanceláří, komerčních prostor a garáží pod střechami. Případné opravy by navíc znemožňovaly provozování střech jako relaxačních ploch a vedly by k rozsáhlým zásahům do osazené vegetace. Návrh hydroizolační koncepce proto řešil hydroizolační vrstvu pod vegetačním substrátem střech jako trvale nepřístupnou konstrukci. Fotodokumentace provádění hydroizolačního systému a součastný stav konstrukcí je zachycen na obr. 30 až 47.
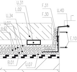
13 – vegetační substrát
12 – separační netkaná textilie 300 g/m2, FILTEK 300
11 – rohož z plastových vláken 400 g/m2, PETEXDREN 400
10 – profi lovaná fólie z HDPE o výšce nopu 60 mm, DEKDREN L60 vyplněná kamenivem frakce 16-32
9 – ochranná betonová mazanina z betonu C16/20, tl. 70 mm
8 – profi lovaná fólie z HDPE s nakašírovanou textilií, DEKDREN G8
7 – separační netkaná textilie 500 g/m2, FILTEK 500
6 – fólie z PVC-P tl.1,5 mm ALKORPLAN 35 034 drenážní vložka z plastových vláken 400 g/m2, PETEXDREN 400 fólie z PVC-P tl.1,5 mm ALKORPLAN 35 034
5 – separační netkaná textilie 500 g/m2, FILTEK 500
4 – expandovaný polystyren EPS 150 S STABIL, tl. 140 mm
3 – pás z SBS modifi kovaného asfaltu GLASTEK 40 SPECIAL MINERAL, tl. 4 mm
2 – cementová litá pěna ve spádu
1 – nosná konstrukce
SHRNUTÍ SLEDOVANÝCH AKCÍ
Čtyři až deset let je již dostatečná doba na to, aby se projevily případné poruchy hydroizolačního systému. Na stavbách, kde bývá u obdobných typů konstrukcí užito pasivních hydroizolačních systémů (tj. bez možnosti objektivní plošné kontroly, případně i aktivace hydroizolační funkce) se obvykle netěsnosti projeví již v průběhu prvního roku od dokončení.
Je zřejmé, že v uvedených případech řadu vad hydroizolace vyloučila odborná objektivní plošná kontrola podtlakem prováděná již při jejím dokončování. Na střeše objektu Terasy Budovec došlo také k aktivaci hydroizolace injektáží několika sektorů, bylo plně využito možnosti zvodotěsnění systému bez nutnosti demontáže provozního souvrství na hydroizolaci. Tato zjištění nás utvrzují ve správnosti navržených řešení, která se osvědčují v praxi. Umožňují nám připomenout následující zásady návrhu hydroizolace provozních střech, které, jestliže nejsou dodrženy, vedou obvykle k zatékání:
Hydroizolace se navrhují ve spádu min. 1°.
Hydroizolaci je třeba chránit souvislou tuhou vrstvou před poškozením navazujícími pracemi (práce na vyšších částech stavby, navážka substrátu). Pokud je ochrannou vrstvou betonová mazanina, navrhuje se pod ní drenážní vrstva.
Obtížně přístupné nebo zcela nepřístupné hydroizolace se navrhují s možností objektivní plošné kontroly, případně aktivace hydroizolační funkce. Za obtížně přístupné je třeba považovat též části střech, nad kterými dojde k rozprodání ploch do osobního vlastnictví – typicky předzahrádky bytových jednotek 1.NP nad suterénními garážemi.
S použitím dvojitého hydroizolačního systému je nutné uvažovat již při návrhu nosných konstrukcí.
Dvojitý hydroizolační systém je třeba provádět zkušenou izolatérskou firmou za podrobného dozoru projektanta systému. Dozor projektanta hydroizolace je třeba provádět až do dokončení provozního souvrství střechy (nekončí zhotovením samotné hydroizolační vrstvy).