Logo Přihlásit | Registrovat

Přihlášení


Registrace do programu DEKPARTNER

Přihlašovací údaje
Zaměření*
Kontaktní údaje

Zapomenuté heslo


Vzdělávací centrum

FASÁDA DEKCASSETTE IDEAL

Zveřejněno: 18. 12. 2015

Jako novinku v sortimentu plechových fasád Vám představujeme obkladový prvek DEKCASSETTE IDEAL.

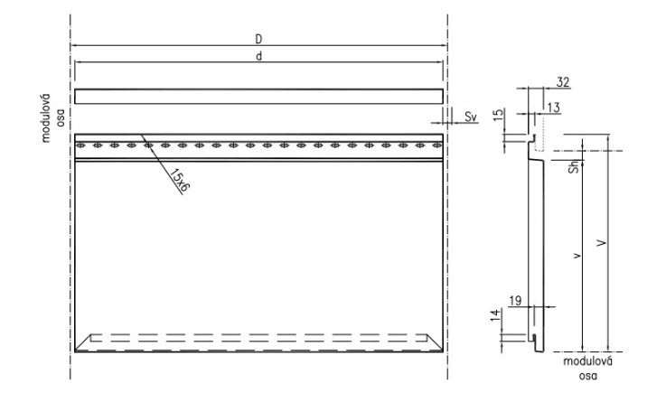
Nový typ pohledového prvku DEKCASSETTE IDEAL je výsledkem několikaletého vývoje a testování s využitím zkušeností ze samotných realizací. Kazeta IDEAL přináší jedinečný typ zámku, větší prostorovou tuhost kazety a možnost výroby kazet až do délky šesti metrů. Nový typ zámku kazety navíc přináší jednodušší montáž a lepši funkční a estetické vlastnost kazety.


Kazeta IDEAL postupné nahradí dosavadní typ kazety LE. Tato však zůstává dále v naší nabídce a bude ji možné po určitou dobu na základě přání zákazníka vyrobit.

Vzhledem k této skutečnosti bychom byli rádi, kdybyste ve svých stávajících a příštích projektech plynule přešli na nový typ kazety.


K novému typu kazet je samozřejmě dostupná veškerá technická podpora, na kterou jste u produktů DEKMETAL zvyklí. Všechny typické detaily naleznete na našich stránkách, nebo jako součást programu DEKPARTNER. Program je poskytován bezplatně a všechny typické detaily můžete volně použít do svých projektů. Naši technici jsou Vám samozřejmě vždy plně k dispozici.

délka d (mm) max. 6000
výška V (mm) max. 800
hloubka (mm) 32
horizontální spára Sh (mm) 5 ... 50
Vertikální spára Sv (mm) 5 ... 50

SCHÉMA A ROZMĚRY

foto 1

NEJMODERNĚJŠÍ TECHNOLOGIE

V roce 2015 byla završena rozsáhlá rekonstrukce výrobního areálu DEKMETAL. Součástí rekonstrukce je nová, unikátní výrobní linka vyvinutá speciálně pro potřeby společnosti DEKMETAL. Nová výrobní linka je v Evropě zcela jedinečná, byla dodávána ve spolupráci dodavatelů ze tří zemí (Německo, Finsko, Itálie) a práce na tomto projektu trvala 3 roky.


Kapacita výroby fasádních systémů se díky této lince zvýší na pětinásobek, což umožní pokrýt neustále se zvyšující poptávku po fasádách DEKMETAL.

foto 2

KONTAKT

Všechny detailní informace o nové kazetě IDEAL, stejně jako o všech stávajících produktech, najdete na našich internetových stránkách.

Podrobné informace Vám rádi předají i naši obchodní zástupci.

foto 3

Těšíme se na spolupráci
Tým DEKMETAL
info@dekmetal.cz

Partneři programu